Maison neuve à
Tendu (36200) Référence : FR2415307_14

Prix du projet : Maison avec Terrain

prix 220 100 €

  • 4 pièces
  • 3 chambres
  • Surface maison 110 m2

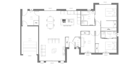
VENTE : maison T4 (110 m²) à Tendu
EMPLACEMENT PRIVILÉGIÉ - MAISON 4 PIÈCES NEUVE
À deux pas de Châteauroux, à vendre bénéficiant d'un emplacement privilégié dans Tendu (36200), votre agence Maisons Bruno Petit MJB Châteauroux est heureuse de vous proposer cette maison de 4 pièces de plain-pied de 110 m².
Conçue de plain-pied, elle se divise en trois chambres, une cuisine et deux salles de bains. La maison est neuve.
Le terrain du bien est de 1 300 m².
Cette maison est située dans un secteur prisé. Une école élémentaire y est implantée. Côté transports, on trouve trois gares (Chabenet, Lothiers et Argenton-sur-Creuse) à moins de 10 minutes en voiture. L'autoroute A20 est accessible à 1 km.
Elle est proposée à l'achat pour 220 100 €.
Prenez contact avec notre agence (Franck RUBIO : °6-30-49-64-43) pour tout renseignement sur la propriété, sur les démarches à suivre ou sur les modalités de vente. Maisons Bruno Petit MJB Châteauroux vous accompagne à toutes les étapes de l'achat et dans tous vos projets immobiliers.

Mentions légales

Terrain proposé par un partenaire foncier selon disponibilités et autorisation de publicité au prix de 18 000 €. Hors droit d'enregistrement et frais de notaire. Terrain + Maison proposés au prix de 202 100 € (Hors branchements et raccordements, papiers peints, peintures, revêtement de sol dans les chambres. Tarif modifiable sans préavis). Etiquette énergie : A. Différents modèles disponibles pour ce terrain. Assurances et garanties du constructeur (RC professionnelle, décennale, dommage ouvrage, garantie de remboursement de l'acompte, livraison à prix et délai convenu) : https://www.maisons-brunopetit.fr/mentions-legales/.

Contactez l'agence de Châteauroux

02 54 22 66 24

    * Champs obligatoires

    Vos informations sont traitées par HEXAOM et transmises à un conseiller commercial qui vous contactera afin de répondre à votre demande. Les plans et images présentés sur notre site sont la propriété d’HEXAOM et ne peuvent pas être reproduits sans son accord. Pour retrouver notre politique de protection des données personnelles et exercer vos droits conformément à la « loi informatique et liberté » cliquez-ici.