Maison neuve à
Tendu (36200) Référence : KG2430829_1

Prix du projet : Maison avec Terrain

prix 145 200 €

  • 3 pièces
  • 2 chambres
  • Surface maison 70 m2

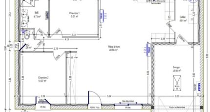
Projet de construction Maison de 3 pièces (70 m²) à Tendu
IDÉALEMENT SITUÉE - MAISON 3 PIÈCES NEUVE
À vendre : localisée à quelques kilomètres de Châteauroux, idéalement située dans Tendu (36200), notre agence Maisons Bruno Petit MJB Châteauroux est ravie de vous présenter cette maison de 3 pièces de plain-pied de 70 m². Elle comporte deux chambres, une cuisine et une salle de bains.
Le terrain du bien est de 1 350 m².
La maison est neuve.
La maison se trouve dans un secteur recherché. On y trouve une école élémentaire. Niveau transports, il y a trois gares (Chabenet, Lothiers et Argenton-sur-Creuse) à moins de 10 minutes en voiture. Il y a un accès à l'autoroute A20 à 1 km.
Elle est proposée à l'achat pour 145 200 €.
Contactez notre constructeur (Kevin GRIMAUD : *6-22-14-89-67) pour obtenir de plus amples renseignements sur le bien. Faites de vos projets immobiliers une réalité avec Maisons Bruno Petit MJB Châteauroux.

Mentions légales

Terrain proposé par un partenaire foncier selon disponibilités et autorisation de publicité au prix de 18 000 €. Hors droit d'enregistrement et frais de notaire. Terrain + Maison proposés au prix de 145 200 € (Hors branchements et raccordements, papiers peints, peintures, revêtement de sol dans les chambres. Tarif modifiable sans préavis). Etiquette énergie : A. Différents modèles disponibles pour ce terrain. Assurances et garanties du constructeur (RC professionnelle, décennale, dommage ouvrage, garantie de remboursement de l'acompte, livraison à prix et délai convenu) : https://www.maisons-brunopetit.fr/mentions-legales/.

Contactez l'agence de Châteauroux

02 54 22 66 24

    * Champs obligatoires

    Vos informations sont traitées par HEXAOM et transmises à un conseiller commercial qui vous contactera afin de répondre à votre demande. Les plans et images présentés sur notre site sont la propriété d’HEXAOM et ne peuvent pas être reproduits sans son accord. Pour retrouver notre politique de protection des données personnelles et exercer vos droits conformément à la « loi informatique et liberté » cliquez-ici.