Maison neuve à
Vasselay (18110) Référence : FH2437182_8

Prix du projet : Maison avec Terrain

prix 447 659 €

  • 6 pièces
  • 4 chambres
  • Surface maison 180 m2

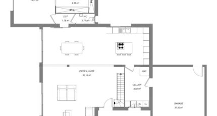
VENTE d'une maison F6 (180 m²) à Vasselay
PROCHE DE BOURGES - MAISON 6 PIÈCES NEUVE
À vendre : à quelques kilomètres de Bourges, à Vasselay (18110), notre agence Maisons Bruno Petit MJB Bourges est heureuse de vous présenter cette maison de 6 pièces de 180 m². Son intérieur se divise en quatre chambres, une cuisine et deux salles de bains.
Le terrain du bien s'étend sur 900 m².
C'est une maison de 2 niveaux. Elle est neuve.
Il y a l'École Primaire Privée Sainte Solange et le Groupe Scolaire Bernard Louis à moins de 10 minutes à pied. Niveau transports en commun, on trouve les gares Bourges et Saint-Germain-du-Puy à moins de 10 minutes en voiture. Il y a un tennis à proximité.
Elle est proposée à l'achat pour 447 659 €.
Contactez Fabien HELLELI (02-48-50-26-25) pour obtenir de plus amples renseignements sur la maison. Maisons Bruno Petit MJB Bourges est là pour vous accompagner dans toutes vos démarches.

Mentions légales

Terrain proposé par un partenaire foncier selon disponibilités et autorisation de publicité au prix de 47 000 €. Hors droit d'enregistrement et frais de notaire. Terrain + Maison proposés au prix de 447 659 € (Hors branchements et raccordements, papiers peints, peintures, revêtement de sol dans les chambres. Tarif modifiable sans préavis). Etiquette énergie : A. Différents modèles disponibles pour ce terrain. Assurances et garanties du constructeur (RC professionnelle, décennale, dommage ouvrage, garantie de remboursement de l'acompte, livraison à prix et délai convenu) : https://www.maisons-brunopetit.fr/mentions-legales/.

Contactez l'agence de Bourges

02 48 50 26 25

    * Champs obligatoires

    Vos informations sont traitées par HEXAOM et transmises à un conseiller commercial qui vous contactera afin de répondre à votre demande. Les plans et images présentés sur notre site sont la propriété d’HEXAOM et ne peuvent pas être reproduits sans son accord. Pour retrouver notre politique de protection des données personnelles et exercer vos droits conformément à la « loi informatique et liberté » cliquez-ici.