Maison neuve à
Vatan (36150) Référence : TM2447852_1

Prix du projet : Maison avec Terrain

prix 172 200 €

  • 3 pièces
  • 2 chambres
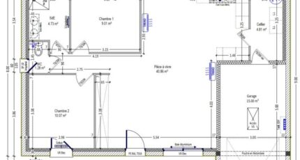
  • Surface maison 70 m2

VENTE d'une maison T3 (70 m²) à Vatan
PROCHE DE CHÂTEAUROUX - MAISON 3 PIÈCES NEUVE
À vendre à 30 km de Châteauroux, à Vatan (36150), venez découvrir cette maison de 3 pièces de plain-pied de 70 m² et de 2 100 m² de terrain. Son intérieur offre deux chambres, une cuisine et une salle de bains.
Cette maison est neuve.
Le Collège Ferdinand de Lesseps, l'École Primaire Privée Sainte-Marie, l'École Maternelle la Poterne et l'École Élémentaire la Poterne sont implantés à moins de 10 minutes à pied. Il y a un bassin de natation, un tennis, deux commerces, une épicerie, un bureau de poste et une boucherie-charcuterie dans les environs. Enfin, le marché Place de la République a lieu chaque mercredi matin.
Son prix de vente est de 172 200 €.
Contactez Thomas MANIERE (06-15-51-71-54) pour toute question sur la maison ou sur les démarches à suivre. Concrétisez vos projets immobiliers avec Maisons Bruno Petit MJB Châteauroux.

Mentions légales

Terrain proposé par un partenaire foncier selon disponibilités et autorisation de publicité au prix de 45 000 €. Hors droit d'enregistrement et frais de notaire. Terrain + Maison proposés au prix de 172 200 € (Hors branchements et raccordements, papiers peints, peintures, revêtement de sol dans les chambres. Tarif modifiable sans préavis). Etiquette énergie : A. Différents modèles disponibles pour ce terrain. Assurances et garanties du constructeur (RC professionnelle, décennale, dommage ouvrage, garantie de remboursement de l'acompte, livraison à prix et délai convenu) : https://www.maisons-brunopetit.fr/mentions-legales/.

Contactez l'agence de Châteauroux

02 54 22 66 24

    * Champs obligatoires

    Vos informations sont traitées par HEXAOM et transmises à un conseiller commercial qui vous contactera afin de répondre à votre demande. Les plans et images présentés sur notre site sont la propriété d’HEXAOM et ne peuvent pas être reproduits sans son accord. Pour retrouver notre politique de protection des données personnelles et exercer vos droits conformément à la « loi informatique et liberté » cliquez-ici.