Maison neuve à
Velles (36330) Référence : KG2470910_2

Prix du projet : Maison avec Terrain

prix 173 500 €

  • 4 pièces
  • 3 chambres
  • Surface maison 85 m2

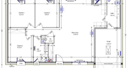
Projet de construction : maison F4 (85 m²) à Velles
IDÉALEMENT SITUÉE - MAISON 4 PIÈCES NEUVE
À vendre à quelques kilomètres de Châteauroux, nous vous proposons cette maison de 4 pièces de plain-pied de 85 m² idéalement située dans Velles (36330). Conçue de plain-pied, elle est composée de trois chambres, d'une cuisine et d'une salle de bains.
Le terrain du bien s'étend sur 1 200 m².
Cette maison est neuve.
Cette maison se trouve dans un secteur convoité. L'École Primaire Simone Veil est implantée à moins de 10 minutes à pied. Niveau transports en commun, il y a les gares Lothiers et Luant à moins de 10 minutes en voiture. On trouve un accès à l'autoroute A20 à 6 km. On trouve un tennis et un bureau de poste à quelques minutes.
Elle est à vendre pour la somme de 173 500 €.
Prenez contact avec Kevin GRIMAUD (tél : *6-22-14-89-67) pour obtenir de plus amples renseignements sur le bien. Maisons Bruno Petit MJB Châteauroux vous accompagne dans tous vos projets immobiliers et à toutes les étapes de votre projet.

Mentions légales

Terrain proposé par un partenaire foncier selon disponibilités et autorisation de publicité au prix de 35 000 €. Hors droit d'enregistrement et frais de notaire. Terrain + Maison proposés au prix de 173 500 € (Hors branchements et raccordements, papiers peints, peintures, revêtement de sol dans les chambres. Tarif modifiable sans préavis). Etiquette énergie : A. Différents modèles disponibles pour ce terrain. Assurances et garanties du constructeur (RC professionnelle, décennale, dommage ouvrage, garantie de remboursement de l'acompte, livraison à prix et délai convenu) : https://www.maisons-brunopetit.fr/mentions-legales/.

Contactez l'agence de Châteauroux

02 54 22 66 24

    * Champs obligatoires

    Vos informations sont traitées par HEXAOM et transmises à un conseiller commercial qui vous contactera afin de répondre à votre demande. Les plans et images présentés sur notre site sont la propriété d’HEXAOM et ne peuvent pas être reproduits sans son accord. Pour retrouver notre politique de protection des données personnelles et exercer vos droits conformément à la « loi informatique et liberté » cliquez-ici.