Maison neuve à
Vignoux-sur-Barangeon (18500) Référence : SG2407871_2

Prix du projet : Maison avec Terrain

prix 161 700 €

  • 3 pièces
  • 2 chambres
  • Surface maison 70 m2

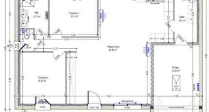
VENTE : maison de 3 pièces (70 m²) à Vignoux-sur-Barangeon
IDÉALEMENT SITUÉE - MAISON 3 PIÈCES NEUVE
À quelques kilomètres de Bourges, nous sommes heureux de vous présenter à vendre, idéalement située dans Vignoux-sur-Barangeon (18500), cette maison de 3 pièces de plain-pied de 70 m². Son intérieur offre deux chambres, une cuisine et une salle de bains.
Le terrain de la maison est de 1 232 m².
La maison est neuve.
Cette maison se situe dans un secteur recherché. Il y a des écoles maternelles et élémentaires à moins de 10 minutes à pied et, parmi lesquelles l'École Élémentaire Jean Christophe Rufin. Niveau transports en commun, on trouve quatre gares à moins de 10 minutes en voiture. Les autoroutes A71 et A20 sont accessibles à moins de 10 km. Il y a un tennis, deux commerces, une boulangerie et une boucherie-charcuterie à proximité de la maison.
Elle est à vendre pour la somme de 161 700 €.
Contactez notre agence (Sandra GROGRELIN : *2-48-50-26-25) pour toute question sur le bien ou sur les modalités de vente.

Mentions légales

Terrain proposé par un partenaire foncier selon disponibilités et autorisation de publicité au prix de 30 800 €. Hors droit d'enregistrement et frais de notaire. Terrain + Maison proposés au prix de 130 900 € (Hors branchements et raccordements, papiers peints, peintures, revêtement de sol dans les chambres. Tarif modifiable sans préavis). Etiquette énergie : A. Différents modèles disponibles pour ce terrain. Assurances et garanties du constructeur (RC professionnelle, décennale, dommage ouvrage, garantie de remboursement de l'acompte, livraison à prix et délai convenu) : https://www.maisons-brunopetit.fr/mentions-legales/.

Contactez l'agence de Bourges

02 48 50 26 25

    * Champs obligatoires

    Vos informations sont traitées par HEXAOM et transmises à un conseiller commercial qui vous contactera afin de répondre à votre demande. Les plans et images présentés sur notre site sont la propriété d’HEXAOM et ne peuvent pas être reproduits sans son accord. Pour retrouver notre politique de protection des données personnelles et exercer vos droits conformément à la « loi informatique et liberté » cliquez-ici.