Maison neuve à
Vignoux-sur-Barangeon (18500) Référence : SG2407883_6

Prix du projet : Maison avec Terrain

prix 163 050 €

  • 4 pièces
  • 3 chambres
  • Surface maison 85 m2

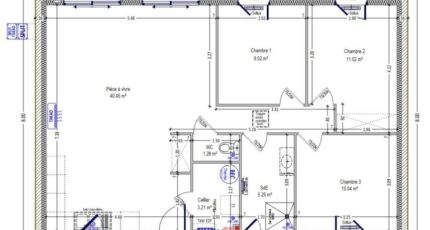
VENTE d'une maison de 4 pièces (85 m²) à Vignoux-sur-Barangeon
IDÉALEMENT SITUÉE - MAISON 4 PIÈCES NEUVE
En vente : à 22 km de Bourges, idéalement située dans Vignoux-sur-Barangeon (18500), nous sommes heureux de vous proposer cette maison de 4 pièces de plain-pied de 85 m².
Son intérieur compte trois chambres, une cuisine et une salle de bains. Cette maison est neuve.
Le terrain du bien s'étend sur 1 475 m².
La maison se situe dans un quartier convoité. Il y a des écoles primaires à moins de 10 minutes à pied et, parmi lesquelles l'École Élémentaire Jean Christophe Rufin. Niveau transports, on trouve quatre gares à moins de 10 minutes en voiture. Les autoroutes A71 et A20 sont accessibles à moins de 10 km. Il y a un tennis, deux commerces, une boulangerie et une boucherie-charcuterie dans les environs.
Elle est à vendre pour la somme de 163 050 €.
Contactez notre agence (GROGRELIN Sandra : *2-48-50-26-25) pour tout renseignement sur la maison ou sur les démarches à suivre.

Mentions légales

Terrain proposé par un partenaire foncier selon disponibilités et autorisation de publicité au prix de 32 450 €. Hors droit d'enregistrement et frais de notaire. Terrain + Maison proposés au prix de 130 600 € (Hors branchements et raccordements, papiers peints, peintures, revêtement de sol dans les chambres. Tarif modifiable sans préavis). Etiquette énergie : A. Différents modèles disponibles pour ce terrain. Assurances et garanties du constructeur (RC professionnelle, décennale, dommage ouvrage, garantie de remboursement de l'acompte, livraison à prix et délai convenu) : https://www.maisons-brunopetit.fr/mentions-legales/.

Contactez l'agence de Bourges

02 48 50 26 25

    * Champs obligatoires

    Vos informations sont traitées par HEXAOM et transmises à un conseiller commercial qui vous contactera afin de répondre à votre demande. Les plans et images présentés sur notre site sont la propriété d’HEXAOM et ne peuvent pas être reproduits sans son accord. Pour retrouver notre politique de protection des données personnelles et exercer vos droits conformément à la « loi informatique et liberté » cliquez-ici.