Maison neuve à
Villabon (18800) Référence : JL2305436_1

Prix du projet : Maison avec Terrain

prix 226 450 €

  • 4 pièces
  • 3 chambres
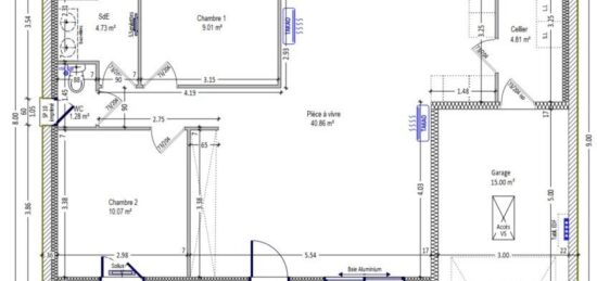
  • Surface maison 120 m2

VENTE d'une maison de 3 pièces (120 m²) à Villabon
IDÉALEMENT SITUÉE - MAISON 3 PIÈCES NEUVE
À vendre : située à deux pas de Bourges, votre agence Maisons Bruno Petit MJB Bourges est heureuse de vous présenter cette maison de 3 pièces de plain-pied de 120 m², idéalement située dans Villabon (18800).
Son intérieur propose trois chambres, une cuisine et deux salles de bains. Cette maison est neuve.
Le terrain du bien est de 2 200 m².
La maison se trouve dans un quartier convoité. On y trouve une école primaire. Niveau transports en commun, il y a la gare Avord à moins de 10 minutes en voiture. La nationale N142 est accessible à 19 km.
Elle est proposée à l'achat pour 226 450 €.
Contactez notre constructeur (Jonathan LEBLANC : 02-48-50-26-25) pour toute question sur la propriété. Faites de vos projets immobiliers une réalité avec Maisons Bruno Petit MJB Bourges.

Mentions légales

Terrain proposé par un partenaire foncier selon disponibilités et autorisation de publicité au prix de 39 550 €. Hors droit d'enregistrement et frais de notaire. Terrain + Maison proposés au prix de 186 900 € (Hors branchements et raccordements, papiers peints, peintures, revêtement de sol dans les chambres. Tarif modifiable sans préavis). Etiquette énergie : A. Différents modèles disponibles pour ce terrain. Assurances et garanties du constructeur (RC professionnelle, décennale, dommage ouvrage, garantie de remboursement de l'acompte, livraison à prix et délai convenu) : https://www.maisons-brunopetit.fr/mentions-legales/.

Contactez l'agence de Bourges

02 48 50 26 25

    * Champs obligatoires

    Vos informations sont traitées par HEXAOM et transmises à un conseiller commercial qui vous contactera afin de répondre à votre demande. Les plans et images présentés sur notre site sont la propriété d’HEXAOM et ne peuvent pas être reproduits sans son accord. Pour retrouver notre politique de protection des données personnelles et exercer vos droits conformément à la « loi informatique et liberté » cliquez-ici.