Maison neuve à
Villabon (18800) Référence : JL2305436_4

Prix du projet : Maison avec Terrain

prix 167 950 €

  • 3 pièces
  • 2 chambres
  • Surface maison 60 m2

VENTE : maison F2 (60 m²) à Villabon
IDÉALEMENT SITUÉE - MAISON 2 PIÈCES NEUVE
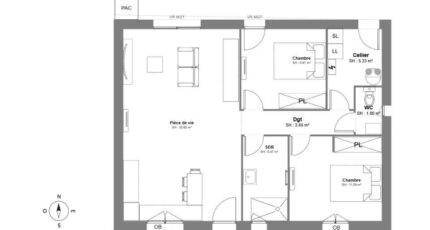
À vendre : localisée à 22 km de Bourges, votre agence Maisons Bruno Petit MJB Bourges est heureuse de vous présenter cette maison de 2 pièces de plain-pied de 60 m² et de 2 200 m² de terrain idéalement située dans Villabon (18800). Conçue de plain-pied, elle comporte deux chambres, une cuisine et une salle de bains.
Cette maison est neuve.
La maison se situe dans un quartier recherché. Une école primaire y est implantée. Niveau transports en commun, il y a la gare Avord à moins de 10 minutes en voiture. On trouve un accès à la nationale N142 à 19 km.
Elle est à vendre pour la somme de 167 950 €.
Contactez Jonathan LEBLANC (tél : 02-48-50-26-25) pour toute question sur le bien. Faites de vos projets immobiliers une réalité avec Maisons Bruno Petit MJB Bourges.

Mentions légales

Terrain proposé par un partenaire foncier selon disponibilités et autorisation de publicité au prix de 39 550 €. Hors droit d'enregistrement et frais de notaire. Terrain + Maison proposés au prix de 128 400 € (Hors branchements et raccordements, papiers peints, peintures, revêtement de sol dans les chambres. Tarif modifiable sans préavis). Etiquette énergie : A. Différents modèles disponibles pour ce terrain. Assurances et garanties du constructeur (RC professionnelle, décennale, dommage ouvrage, garantie de remboursement de l'acompte, livraison à prix et délai convenu) : https://www.maisons-brunopetit.fr/mentions-legales/.

Contactez l'agence de Bourges

02 48 50 26 25

    * Champs obligatoires

    Vos informations sont traitées par HEXAOM et transmises à un conseiller commercial qui vous contactera afin de répondre à votre demande. Les plans et images présentés sur notre site sont la propriété d’HEXAOM et ne peuvent pas être reproduits sans son accord. Pour retrouver notre politique de protection des données personnelles et exercer vos droits conformément à la « loi informatique et liberté » cliquez-ici.