Maison neuve à
Villabon (18800) Référence : JL2305436_6

Prix du projet : Maison avec Terrain

prix 337 050 €

  • 6 pièces
  • 3 chambres
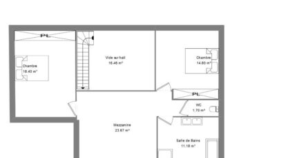
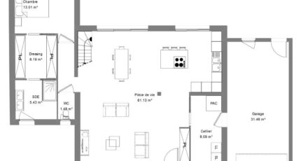
  • Surface maison 160 m2

Maison T6 (160 m²) à vendre à Villabon
IDÉALEMENT SITUÉE - MAISON 6 PIÈCES NEUVE
À deux pas de Bourges, à vendre idéalement située dans Villabon (18800), nous sommes ravis de vous présenter cette maison de 6 pièces de 160 m².
Cette maison comporte 2 niveaux. Elle est composée de trois chambres, d'une cuisine et de deux salles de bains. Cette maison est neuve.
Le terrain de la propriété s'étend sur 2 200 m².
Cette maison se situe dans un secteur prisé. Une école primaire y est implantée. Côté transports en commun, on trouve la gare Avord à moins de 10 minutes en voiture. La nationale N142 est accessible à 19 km.
Elle est à vendre pour la somme de 337 050 €.
N'hésitez pas à prendre contact avec Jonathan LEBLANC (02-48-50-26-25) pour tout renseignement sur la maison, sur les démarches à suivre ou sur les modalités de vente. Donnez vie à vos projets immobiliers avec Maisons Bruno Petit MJB Bourges.

Mentions légales

Terrain proposé par un partenaire foncier selon disponibilités et autorisation de publicité au prix de 39 550 €. Hors droit d'enregistrement et frais de notaire. Terrain + Maison proposés au prix de 297 500 € (Hors branchements et raccordements, papiers peints, peintures, revêtement de sol dans les chambres. Tarif modifiable sans préavis). Etiquette énergie : A. Différents modèles disponibles pour ce terrain. Assurances et garanties du constructeur (RC professionnelle, décennale, dommage ouvrage, garantie de remboursement de l'acompte, livraison à prix et délai convenu) : https://www.maisons-brunopetit.fr/mentions-legales/.

Contactez l'agence de Bourges

02 48 50 26 25

    * Champs obligatoires

    Vos informations sont traitées par HEXAOM et transmises à un conseiller commercial qui vous contactera afin de répondre à votre demande. Les plans et images présentés sur notre site sont la propriété d’HEXAOM et ne peuvent pas être reproduits sans son accord. Pour retrouver notre politique de protection des données personnelles et exercer vos droits conformément à la « loi informatique et liberté » cliquez-ici.