Maison neuve à
Villabon (18800) Référence : SG2397744_7

Prix du projet : Maison avec Terrain

prix 321 500 €

  • 4 pièces
  • 3 chambres
  • Surface maison 120 m2

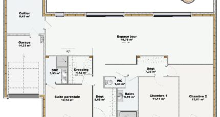
Maison de 4 pièces (120 m²) à vendre à Villabon
IDÉALEMENT SITUÉE - MAISON 4 PIÈCES NEUVE
En vente à 22 km de Bourges, venez découvrir cette maison de 4 pièces de plain-pied de 120 m², idéalement située dans Villabon (18800).
Elle est composée de trois chambres, d'une cuisine et de deux salles de bains. La maison est neuve.
Le terrain du bien s'étend sur 2 280 m².
La maison se situe dans un quartier recherché. Une école primaire y est implantée. Côté transports, il y a la gare Avord à moins de 10 minutes en voiture. On trouve un accès à la nationale N142 à 19 km.
Elle est à vendre pour la somme de 321 500 €.
Prenez contact avec Sandra GROGRELIN (tél : *2-48-50-26-25) pour plus de renseignements sur la maison, sur les modalités de vente ou sur les démarches à suivre.

Mentions légales

Terrain proposé par un partenaire foncier selon disponibilités et autorisation de publicité au prix de 39 550 €. Hors droit d'enregistrement et frais de notaire. Terrain + Maison proposés au prix de 281 950 € (Hors branchements et raccordements, papiers peints, peintures, revêtement de sol dans les chambres. Tarif modifiable sans préavis). Etiquette énergie : A. Différents modèles disponibles pour ce terrain. Assurances et garanties du constructeur (RC professionnelle, décennale, dommage ouvrage, garantie de remboursement de l'acompte, livraison à prix et délai convenu) : https://www.maisons-brunopetit.fr/mentions-legales/.

Contactez l'agence de Bourges

02 48 50 26 25

    * Champs obligatoires

    Vos informations sont traitées par HEXAOM et transmises à un conseiller commercial qui vous contactera afin de répondre à votre demande. Les plans et images présentés sur notre site sont la propriété d’HEXAOM et ne peuvent pas être reproduits sans son accord. Pour retrouver notre politique de protection des données personnelles et exercer vos droits conformément à la « loi informatique et liberté » cliquez-ici.