Maison neuve à
Vineuil (36110) Référence : KG2292985_1

Prix du projet : Maison avec Terrain

prix 177 600 €

  • 4 pièces
  • 3 chambres
  • Surface maison 85 m2

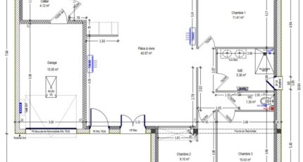
VENTE : maison T4 (85 m²) à Vineuil
MAISON 4 PIÈCES NEUVE - PROCHE DE CHÂTEAUROUX
À 12 km de Châteauroux, nous sommes ravis de vous proposer à vendre à Vineuil (36110), cette maison de 4 pièces de plain-pied de 85 m².
Conçue de plain-pied, elle est composée de trois chambres, d'une cuisine et d'une salle de bains. Cette maison est neuve.
Le terrain de la propriété s'étend sur 1 147 m².
Il y a l'École Primaire des Vignes-R. Vincent à moins de 10 minutes à pied. L'autoroute A20 et la nationale N151 sont accessibles à moins de 10 km. On trouve un tennis et une boulangerie dans les environs.
Elle est à vendre pour la somme de 177 600 €.
N'hésitez pas à prendre contact avec notre agence (GRIMAUD Kevin : 06-22-14-89-67) pour obtenir de plus amples informations sur la maison, sur les démarches à suivre ou sur les modalités de vente. Maisons Bruno Petit MJB Châteauroux est là pour vous accompagner dans tous vos projets immobiliers.

Mentions légales

Terrain proposé par un partenaire foncier selon disponibilités et autorisation de publicité au prix de 33 500 €. Hors droit d'enregistrement et frais de notaire. Maison proposée, avec un contrat de construction de maison individuelle, dans le cadre de la loi du 19/12/1990, au prix de 144 100 € (Hors branchements et raccordements, papiers peints, peintures, revêtement de sol dans les chambres, qui sont chiffrés dans les travaux qui restent à charge du client. Tarif modifiable sans préavis). Étiquette énergie : A. Différents modèles disponibles pour ce terrain. Assurances et garanties du constructeur comprises (RC professionnelle, décennale, dommage ouvrage).

Contactez l'agence de Châteauroux

02 54 22 66 24

    * Champs obligatoires

    Vos informations sont traitées par HEXAOM et transmises à un conseiller commercial qui vous contactera afin de répondre à votre demande. Les plans et images présentés sur notre site sont la propriété d’HEXAOM et ne peuvent pas être reproduits sans son accord. Pour retrouver notre politique de protection des données personnelles et exercer vos droits conformément à la « loi informatique et liberté » cliquez-ici.