Maison neuve à
Vineuil (36110) Référence : KG2292985_7

Prix du projet : Maison avec Terrain

prix 363 700 €

  • 4 pièces
  • 4 chambres
  • Surface maison 130 m2

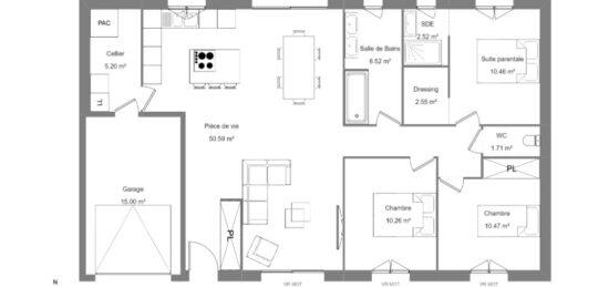
VENTE d'une maison de 4 pièces (130 m²) à Vineuil
PROCHE DE CHÂTEAUROUX - MAISON 4 PIÈCES NEUVE
À vendre : à 12 km de Châteauroux, votre agence Maisons Bruno Petit MJB Châteauroux est ravie de vous présenter à Vineuil (36110), cette maison de 4 pièces de 130 m² et de 1 147 m² de terrain.
Cette maison comporte 2 niveaux. Son intérieur compte quatre chambres, une cuisine et deux salles de bains. Cette maison est neuve.
L'École Primaire des Vignes-R. Vincent est implantée à moins de 10 minutes à pied. L'autoroute A20 et la nationale N151 sont accessibles à moins de 10 km. Il y a un tennis et une boulangerie dans les environs.
Son prix de vente est de 363 700 €.
N'hésitez pas à prendre contact avec notre agence (Kevin GRIMAUD : 06-22-14-89-67) pour obtenir de plus amples renseignements sur la maison.

Mentions légales

Terrain proposé par un partenaire foncier selon disponibilités et autorisation de publicité au prix de 33 500 €. Hors droit d'enregistrement et frais de notaire. Maison proposée, avec un contrat de construction de maison individuelle, dans le cadre de la loi du 19/12/1990, au prix de 330 200 € (Hors branchements et raccordements, papiers peints, peintures, revêtement de sol dans les chambres, qui sont chiffrés dans les travaux qui restent à charge du client. Tarif modifiable sans préavis). Étiquette énergie : A. Différents modèles disponibles pour ce terrain. Assurances et garanties du constructeur comprises (RC professionnelle, décennale, dommage ouvrage).

Contactez l'agence de Châteauroux

02 54 22 66 24

    * Champs obligatoires

    Vos informations sont traitées par HEXAOM et transmises à un conseiller commercial qui vous contactera afin de répondre à votre demande. Les plans et images présentés sur notre site sont la propriété d’HEXAOM et ne peuvent pas être reproduits sans son accord. Pour retrouver notre politique de protection des données personnelles et exercer vos droits conformément à la « loi informatique et liberté » cliquez-ici.