Maison neuve à
Vineuil (36110) Référence : FR2295102_6

Prix du projet : Maison avec Terrain

prix 252 100 €

  • 4 pièces
  • 3 chambres
  • Surface maison 110 m2

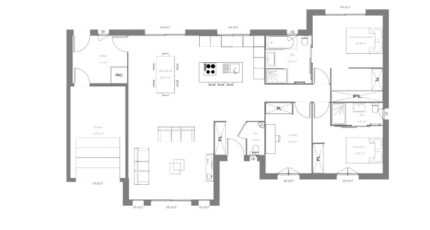
Maison neuve F4 - 117 m² habitable - Proche Vineuil
📍 Sur la commune de Vineuil, dans un quartier calme, découvrez ce projet de maison neuve de 117m² habitables, généreuse par ses volumes et confortable grâce a ses différents lieux de vie destinés à chacun et son aspect extérieur différenciant.
Cette maison est proposée sur un terrain situé à proximité des réseaux de bus 🚌.
✨Personnalisez votre plan

✨la maison présente un volume de vie très lumineux, un rez de chaussé et un comble aménageable, d'un ensemble couvert et couverture 2 pans et toit terrasse sur garage.
✨Sa finition extérieure est composée de menuiseries contemporaines et personnalisables, d'un porche sur entrée, de volumes décalés sur la façade arrière, l'avant et un toit terrasse sur le garage.
✨ La maison offre un espace optimisé, un confort au quotidien et une excellente performance énergétique.
🔧 Prestations de qualité :
✔ Chauffage, eau chaude et VMC Atlantic
✔ Volets roulants motorisés et centralisés avec domotique
✔ Sanitaires Jacob Delafon
✔ Portes intérieures gravées
✔ Menuiseries PVC / mixtes / aluminium
✔ Construction conforme RE 2020
📜 Projet réalisé sous Contrat de Construction (CCMI - loi de 1990) pour une sécurité maximale.
🤝 Maisons Brunon Petit, constructeur local depuis 47 ²ans, vous accompagne pour concevoir votre maison selon vos attentes.
📞 N'attendez plus et Contactez Franck RUBIO ( °630496443) pour plus d'informations et créez votre projet personnalisé. Sms acceptés

Mentions légales

Terrain proposé par un partenaire foncier selon disponibilités et autorisation de publicité au prix de 50 000 €. Hors droit d'enregistrement et frais de notaire. Terrain + Maison proposés au prix de 202 100 € (Hors branchements et raccordements, papiers peints, peintures, revêtement de sol dans les chambres. Tarif modifiable sans préavis). Etiquette énergie : A. Différents modèles disponibles pour ce terrain. Assurances et garanties du constructeur (RC professionnelle, décennale, dommage ouvrage, garantie de remboursement de l'acompte, livraison à prix et délai convenu) : https://www.maisons-brunopetit.fr/mentions-legales/.

Contactez l'agence de Châteauroux

02 54 22 66 24

    * Champs obligatoires

    Vos informations sont traitées par HEXAOM et transmises à un conseiller commercial qui vous contactera afin de répondre à votre demande. Les plans et images présentés sur notre site sont la propriété d’HEXAOM et ne peuvent pas être reproduits sans son accord. Pour retrouver notre politique de protection des données personnelles et exercer vos droits conformément à la « loi informatique et liberté » cliquez-ici.