Maison neuve à
Vineuil (36110) Référence : KG2346014_3

Prix du projet : Maison avec Terrain

prix 304 500 €

  • 6 pièces
  • 4 chambres
  • Surface maison 120 m2

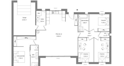
VENTE : maison de 6 pièces (120 m²) à Vineuil
IDÉALEMENT SITUÉE - MAISON 6 PIÈCES NEUVE
À 12 km de Châteauroux, en vente idéalement située dans Vineuil (36110), venez découvrir cette maison de 6 pièces de plain-pied de 120 m².
Conçue de plain-pied, elle dispose de quatre chambres, d'une cuisine et de deux salles de bains. La maison est neuve.
Le terrain du bien est de 4 710 m².
Cette maison se situe dans un quartier recherché. L'École Primaire des Vignes-R. Vincent se trouve à moins de 10 minutes à pied. L'autoroute A20 et la nationale N151 sont accessibles à moins de 10 km. Il y a un tennis et une boulangerie à quelques minutes à peine.
Elle est proposée à l'achat pour 304 500 €.
N'hésitez pas à prendre contact avec notre agence (GRIMAUD Kevin : *6-22-14-89-67) pour toute question sur la maison.

Mentions légales

Terrain proposé par un partenaire foncier selon disponibilités et autorisation de publicité au prix de 50 000 €. Hors droit d'enregistrement et frais de notaire. Terrain + Maison proposés au prix de 254 500 € (Hors branchements et raccordements, papiers peints, peintures, revêtement de sol dans les chambres. Tarif modifiable sans préavis). Etiquette énergie : A. Différents modèles disponibles pour ce terrain. Assurances et garanties du constructeur (RC professionnelle, décennale, dommage ouvrage, garantie de remboursement de l'acompte, livraison à prix et délai convenu) : https://www.maisons-brunopetit.fr/mentions-legales/.

Contactez l'agence de Châteauroux

02 54 22 66 24

    * Champs obligatoires

    Vos informations sont traitées par HEXAOM et transmises à un conseiller commercial qui vous contactera afin de répondre à votre demande. Les plans et images présentés sur notre site sont la propriété d’HEXAOM et ne peuvent pas être reproduits sans son accord. Pour retrouver notre politique de protection des données personnelles et exercer vos droits conformément à la « loi informatique et liberté » cliquez-ici.