Maison neuve à
Saint-Florent-sur-Cher (18400) Référence : DP2258615_1

Prix du projet : Maison avec Terrain

prix 179 100 €

  • 4 pièces
  • 3 chambres
  • Surface maison 85 m2

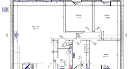
Saint-Florent-sur-Cher : maison de 4 pièces (85 m²) à vendre
CENTRE-VILLE - MAISON 4 PIÈCES NEUVE
En vente : localisée à deux pas de Bourges, notre agence Maisons Bruno Petit MJB Bourges est ravie de vous présenter cette maison de 4 pièces de plain-pied de 85 m² et de 600 m² de terrain dans le centre de Saint-Florent-sur-Cher (18400).
Son intérieur est composé de trois chambres, d'une cuisine et d'une salle de bains. La maison est neuve.
Il y a quatre établissements scolaires à moins de 10 minutes à pied. Côté transports en commun, on trouve la gare Saint-Florent-sur-Cher dans les alentours. L'autoroute A71 et la nationale N151 sont accessibles à moins de 9 km. Il y a une bibliothèque, un bassin de natation, un tennis, des commerces, un supermarché, quatre boulangeries, un bureau de poste et trois boucheries-charcuteries à quelques minutes. Enfin, le marché Place de la République anime le quartier chaque vendredi matin.
Elle est proposée à l'achat pour 179 100 €.
N'hésitez pas à prendre contact avec David POUPET (tél : 02-48-50-26-25) pour plus de renseignements sur le bien, sur les démarches à suivre ou sur les modalités de vente. Maisons Bruno Petit MJB Bourges vous accompagne à toutes les étapes de l'achat et dans tous vos projets immobiliers.

Mentions légales

Terrain proposé par un partenaire foncier selon disponibilités et autorisation de publicité au prix de 49 000 €. Hors droit d'enregistrement et frais de notaire. Maison proposée, avec un contrat de construction de maison individuelle, dans le cadre de la loi du 19/12/1990, au prix de 130 100 € (Hors branchements et raccordements, papiers peints, peintures, revêtement de sol dans les chambres, qui sont chiffrés dans les travaux qui restent à charge du client. Tarif modifiable sans préavis). Étiquette énergie : A. Différents modèles disponibles pour ce terrain. Assurances et garanties du constructeur comprises (RC professionnelle, décennale, dommage ouvrage).

Contactez l'agence de Bourges

02 48 50 26 25

    * Champs obligatoires

    Vos informations sont traitées par HEXAOM et transmises à un conseiller commercial qui vous contactera afin de répondre à votre demande. Les plans et images présentés sur notre site sont la propriété d’HEXAOM et ne peuvent pas être reproduits sans son accord. Pour retrouver notre politique de protection des données personnelles et exercer vos droits conformément à la « loi informatique et liberté » cliquez-ici.