Maison neuve à 
  Aigurande
 (36140)  Référence :
 FR2300301_1 
Prix du projet : Maison avec Terrain
prix 140 884 €
- 3 pièces
- 2 chambres
- Surface maison 70 m2
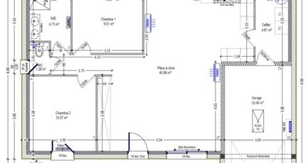
VENTE d'une maison de 3 pièces (70 m²) à Aigurande
IDÉALEMENT SITUÉE - MAISON 3 PIÈCES NEUVE
Nous sommes heureux de vous présenter à vendre, idéalement située dans Aigurande (36140), cette maison de 3 pièces de plain-pied de 70 m². Son intérieur offre deux chambres, une cuisine et une salle de bains.
Le terrain du bien est de 832 m².
Cette maison est neuve.
La maison se situe dans un secteur attractif. On trouve trois établissements scolaires à moins de 10 minutes à pied et dont l'École Élémentaire Jean Moulin et le Collège Frédéric Chopin. Il y a un tennis, trois boulangeries, des commerces, un supermarché, deux boucheries-charcuteries et un bureau de poste à quelques minutes à peine.
Elle est proposée à l'achat pour 140 884 €.
Prenez contact avec Franck RUBIO (06-30-49-64-43) pour toute information sur la maison.
Mentions légales
Terrain proposé par un partenaire foncier selon disponibilités et autorisation de publicité au prix de 9 984 €. Hors droit d'enregistrement et frais de notaire. Maison proposée, avec un contrat de construction de maison individuelle, dans le cadre de la loi du 19/12/1990, au prix de 130 900 € (Hors branchements et raccordements, papiers peints, peintures, revêtement de sol dans les chambres, qui sont chiffrés dans les travaux qui restent à charge du client. Tarif modifiable sans préavis). Étiquette énergie : A. Différents modèles disponibles pour ce terrain. Assurances et garanties du constructeur comprises (RC professionnelle, décennale, dommage ouvrage).Agence Bruno Petit MJB de Châteauroux (36000)
- Téléphone :
- 02 54 22 66 24
- Adressse :
-  360 avenue de la Châtre
 36000 Châteauroux, France
 
  
  
  
 