BORDEAUX 137

Plan maison 4 pièces 3 chambres Surface maison 130 à 140 m2

Maison tradi-moderne de 137m² habitable sur étage, bénéficiant d'une pièce à vivre d'une cinquantaine de m², un espace suite parentale avec WC séparé.
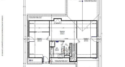
A l'étage vous retrouverez 2 grandes chambres 16 m² et 18 m², une mezzanine pouvant accueillir votre espace bureau, une salle de bain et des WC séparé.
Côté espace technique ce projet offre un garage de 17 m² et un cellier de 8 m².
Concernant les prestations, le prix comprend des menuiseries en aluminium avec volets roulants électriques sur toutes les ouvertures, une Pompe à chaleur (PAC) alimentant un plancher chauffant au RDC, placostil...

Construire ce modèle ?

    * Champs obligatoires

    Vos informations sont traitées par HEXAOM et transmises à un conseiller commercial qui vous contactera afin de répondre à votre demande. Les plans et images présentés sur notre site sont la propriété d’HEXAOM et ne peuvent pas être reproduits sans son accord. Pour retrouver notre politique de protection des données personnelles et exercer vos droits conformément à la « loi informatique et liberté » cliquez-ici.